268 Haby Hollow, San Antonio, TX 78253
Contact Premier Realty Group
Schedule A Showing
Request more information
- MLS#: 1928236 ( Single Residential )
- Street Address: 268 Haby Hollow
- Viewed: 2
- Price: $545,900
- Price sqft: $218
- Waterfront: No
- Year Built: 2025
- Bldg sqft: 2504
- Bedrooms: 4
- Total Baths: 3
- Full Baths: 3
- Garage / Parking Spaces: 2
- Days On Market: 5
- Additional Information
- County: BEXAR
- City: San Antonio
- Zipcode: 78253
- Subdivision: Haby Hill
- District: Medina Valley I.S.D.
- Elementary School: Potranco
- Middle School: Loma Alta
- High School: Medina Valley
- Provided by: Perry Homes Realty, LLC
- Contact: Lee Jones
- (713) 948-6666

- DMCA Notice
-
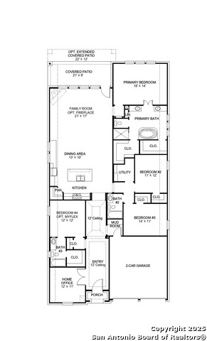
DescriptionHome office with French doors set at entry with 12 foot ceiling. Extended entry leads to open kitchen, dining area and family room. Kitchen features corner walk in pantry, a 5 burner gas cooktop, generous counter space and island with built in seating space. Dining area flows into family room with wall of windows. Primary suite includes double door entry to primary bath with dual vanities, garden tub, separate glass enclosed shower and two large walk in closets. A guest suite with private bath adds to this spacious one story home. Extended covered backyard patio and a 5 zone sprinkler system. Mud room off two car garage.
Property Location and Similar Properties
Features
Possible Terms
- Conventional
- FHA
- VA
- Cash
Air Conditioning
- One Central
Builder Name
- PERRY HOMES
Construction
- New
Contract
- Exclusive Right To Sell
Elementary School
- Potranco
Energy Efficiency
- Tankless Water Heater
- 16+ SEER AC
- Programmable Thermostat
- Double Pane Windows
- Energy Star Appliances
- Radiant Barrier
- Low E Windows
- High Efficiency Water Heater
- Ceiling Fans
Exterior Features
- Brick
- 4 Sides Masonry
- Stone/Rock
Fireplace
- Not Applicable
Floor
- Carpeting
- Ceramic Tile
Foundation
- Slab
Garage Parking
- Two Car Garage
- Attached
Green Certifications
- HERS Rated
- HERS 0-85
Green Features
- Low Flow Commode
- Mechanical Fresh Air
Heating
- Central
Heating Fuel
- Natural Gas
High School
- Medina Valley
Home Owners Association Fee
- 625
Home Owners Association Frequency
- Annually
Home Owners Association Mandatory
- Mandatory
Home Owners Association Name
- LIFETIME HOA MANAGEMENT
Home Faces
- North
Inclusions
- Ceiling Fans
- Washer Connection
- Dryer Connection
- Cook Top
- Built-In Oven
- Microwave Oven
- Disposal
- Dishwasher
- Smoke Alarm
- Pre-Wired for Security
- Garage Door Opener
- Plumb for Water Softener
Instdir
- From Loop 1604 West
- exit Culebra Road and turn right. Continue straight on Culebra Road for approximately 6.5 miles to TX-211. Turn left and travel for 1.7 miles. Turn right on Haby Hill and the sales center is on the right at 194 Haby Hill.
Interior Features
- Two Living Area
- Liv/Din Combo
- Eat-In Kitchen
- Island Kitchen
- Walk-In Pantry
- Study/Library
- Utility Room Inside
- 1st Floor Lvl/No Steps
- High Ceilings
- Open Floor Plan
- Pull Down Storage
- All Bedrooms Downstairs
- Laundry Main Level
- Laundry Room
- Walk in Closets
Kitchen Length
- 13
Legal Desc Lot
- 31
Legal Description
- MANGOLD TRACT UNIT 1 BLOCK 5 LOT 31
Lot Dimensions
- 50X120
Lot Improvements
- Street Paved
- Curbs
- Street Gutters
- Sidewalks
- Streetlights
Middle School
- Loma Alta
Miscellaneous
- Builder 10-Year Warranty
- Taxes Not Assessed
- Under Construction
- Additional Bldr Warranty
Multiple HOA
- No
Neighborhood Amenities
- None
Occupancy
- Vacant
Owner Lrealreb
- Yes
Ph To Show
- 713-948-6666
Possession
- Closing/Funding
Property Type
- Single Residential
Roof
- Composition
School District
- Medina Valley I.S.D.
Source Sqft
- Bldr Plans
Style
- One Story
- Traditional
Total Tax
- 1.82
Water/Sewer
- Water System
- Sewer System
Window Coverings
- None Remain
Year Built
- 2025












